Typ 2 Ferienwohnung 15
Die Wohnung wurde 2022 komplett renoviert und die Möbel neu bezogen.
Belegung max. 6 Personen
+ Kind
Haus II
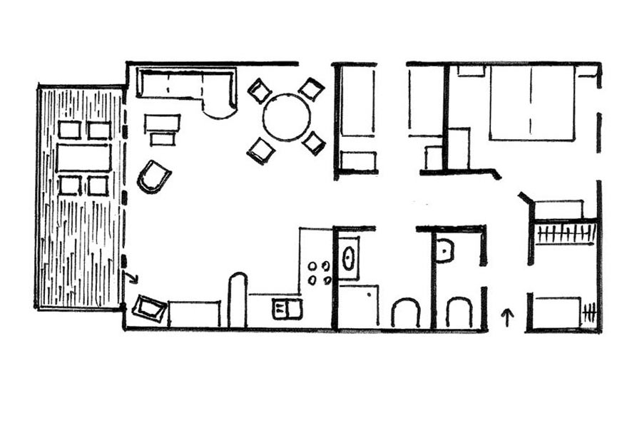
In der „Strandresidenz Juliusruh“ Haus II – nur 150 m vom 12 km langen Badestrand Schaabe entfernt – liegt die 3-Zimmer-Ferienwohnung im 1. Obergeschoss mit Balkon.
Auf praktischen 70 Quadratmetern verteilen sich insgesamt drei Zimmer.
Mittelpunkt ist der kombinierte Wohn-Ess- und Kochbereich mit einer gemütlichen Sofagarnitur mit Gratis-WLAN, SAT-TV und Radio mit CD-Player.
Die praktische Küchenzeile verfügt über allerhand Equipment – von der Kaffeemaschine, Toaster über den Geschirrspüler bis zum Tiefkühlwürfel..
Ein Schlafzimmer mit Doppelbett, ein weiteres Schlafzimmer mit 2 Einzelbetten, das Badezimmer mit Dusche, Waschbecken, WC und ein separates WC mit Waschbecken schließen sich dem Wohnbereich an.
Desweiteren stehen Ihnen zur Verfügung:
- ein Kellerraum im Haus II für Fahrräder, Surfbretter u.v.a.
- zusätzlich eine Münz-Waschmaschine und -trockner .
- im Außenbereich auf dem Gelände ein kostenloser Parkplatz
- auf Wunsch stellen wir für unsere kleinen Gäste einen Hochstuhl und ein Kinderbett bereit.















Ausstattung
Schlafen
- 1 Schlafzimmer mit 1 Doppelbett
- 1 Schlafzimmer mit 2 Einzelbetten
- ausziehbare Schlafcouch im Wohnzimmer
(1,25 x 2,00 m) - Kinderbett (ohne Matratze)
Wohnen
- Sitzcouch mit 2 Sesseln
- 3 Zimmer gesamt
- 1 Badezimmer
- 2 Schlafzimmer
- 6 Schlafmöglichkeiten
- 1 Kinderbett bis 3 Jahre
Küche
- Geschirrspüler
- Backofen
- Geschirr und Besteck
- Kühlschrank mit Tiefkühlfach
- Kaffeemaschine
- Toaster
Badezimmer
- Dusche
- Waschbecken
- Toilette
separates WC
- WC
- Waschbecken
Hauswirtschaft
- Staubsauger
- Besen
- Bügelbrett
- Bügeleisen
- Waschmaschine im Keller
- Wäschetrockner im Keller
Unterhaltung
- WLAN
- Sat-TV
mit TV-Flachbildschirm - Radio mit CD-Player
Allgemein
- 6 Personen max. Belegung
- Nichtraucherwohnung
- Kinderstuhl
- Kinderbett
- Keller im Haus II für Fahrräder, Surfbretter usw.
- Keller im Haus II mit Münz-Waschmaschine und -trockner
Außenbereich
- überdachter Balkon
- Balkontisch mit Stühlen
- 1 Parkplatz auf dem Gelände
Reservierung/Buchung
Hier können Sie eine Ferienwohnung reservieren oder online buchen
Informationen!
Informationen zu unseren Ferienwohnungen und der Insel Rügen
Haben Sie Fragen?
E-Mail: boehm@ruegenurlaub.de
oder über unser Kontaktformular
Insel-Infos
Tipps, Sehenswürdigkeiten, Freizeitangebote auf der Insel Rügen.
Belegungsplan
Ferienwohnung Typ 2 Nr. 15
Wenn Ihr Wunschtermin belegt ist,
kann man unter Wohnungssuche freie Wohnungen suchen
Wenn alternative Zeiträume vor oder nach dem Wunschtermin möglich sind
Bedeutung der Farben
Ferienwohnung ist noch frei
Ferienwohnung 8 Tage reserviert
An- bzw. Abreisetag
Ferienwohnung ist belegt
November 2025
| Mo | Di | Mi | Do | Fr | Sa | So |
| 1 | 2 | |||||
| 3 | 4 | 5 | 6 | 7 | 8 | 9 |
| 10 | 11 | 12 | 13 | 14 | 15 | 16 |
| 17 | 18 | 19 | 20 | 21 | 22 | 23 |
| 24 | 25 | 26 | 27 | 28 | 29 | 30 |
Dezember 2025
| Mo | Di | Mi | Do | Fr | Sa | So |
| 1 | 2 | 3 | 4 | 5 | 6 | 7 |
| 8 | 9 | 10 | 11 | 12 | 13 | 14 |
| 15 | 16 | 17 | 18 | 19 | 20 | 21 |
| 22 | 23 | 24 | 25 | 26 | 27 | 28 |
| 29 | 30 | 31 |
Januar 2026
| Mo | Di | Mi | Do | Fr | Sa | So |
| 1 | 2 | 3 | 4 | |||
| 5 | 6 | 7 | 8 | 9 | 10 | 11 |
| 12 | 13 | 14 | 15 | 16 | 17 | 18 |
| 19 | 20 | 21 | 22 | 23 | 24 | 25 |
| 26 | 27 | 28 | 29 | 30 | 31 |
Februar 2026
| Mo | Di | Mi | Do | Fr | Sa | So |
| 1 | 2 | 3 | 4 | 5 | 6 | 7 | 8 |
| 9 | 10 | 11 | 12 | 13 | 14 | 15 |
| 16 | 17 | 18 | 19 | 20 | 21 | 22 |
| 23 | 24 | 25 | 26 | 27 | 28 |
März 2026
| Mo | Di | Mi | Do | Fr | Sa | So |
| 1 | 2 | 3 | 4 | 5 | 6 | 7 | 8 |
| 9 | 10 | 11 | 12 | 13 | 14 | 15 |
| 16 | 17 | 18 | 19 | 20 | 21 | 22 |
| 23 | 24 | 25 | 26 | 27 | 28 | 29 |
| 30 | 31 |
April 2026
| Mo | Di | Mi | Do | Fr | Sa | So |
| 1 | 2 | 3 | 4 | 5 | ||
| 6 | 7 | 8 | 9 | 10 | 11 | 12 |
| 13 | 14 | 15 | 16 | 17 | 18 | 19 |
| 20 | 21 | 22 | 23 | 24 | 25 | 26 |
| 27 | 28 | 29 | 30 |
Mai 2026
| Mo | Di | Mi | Do | Fr | Sa | So |
| 1 | 2 | 3 | ||||
| 4 | 5 | 6 | 7 | 8 | 9 | 10 |
| 11 | 12 | 13 | 14 | 15 | 16 | 17 |
| 18 | 19 | 20 | 21 | 22 | 23 | 24 |
| 25 | 26 | 27 | 28 | 29 | 30 | 31 |
Juni 2026
| Mo | Di | Mi | Do | Fr | Sa | So |
| 1 | 2 | 3 | 4 | 5 | 6 | 7 |
| 8 | 9 | 10 | 11 | 12 | 13 | 14 |
| 15 | 16 | 17 | 18 | 19 | 20 | 21 |
| 22 | 23 | 24 | 25 | 26 | 27 | 28 |
| 29 | 30 |
Juli 2026
| Mo | Di | Mi | Do | Fr | Sa | So |
| 1 | 2 | 3 | 4 | 5 | ||
| 6 | 7 | 8 | 9 | 10 | 11 | 12 |
| 13 | 14 | 15 | 16 | 17 | 18 | 19 |
| 20 | 21 | 22 | 23 | 24 | 25 | 26 |
| 27 | 28 | 29 | 30 | 31 |
August 2026
| Mo | Di | Mi | Do | Fr | Sa | So |
| 1 | 2 | |||||
| 3 | 4 | 5 | 6 | 7 | 8 | 9 |
| 10 | 11 | 12 | 13 | 14 | 15 | 16 |
| 17 | 18 | 19 | 20 | 21 | 22 | 23 |
| 24 | 25 | 26 | 27 | 28 | 29 | 30 |
| 31 |
September 2026
| Mo | Di | Mi | Do | Fr | Sa | So |
| 1 | 2 | 3 | 4 | 5 | 6 | |
| 7 | 8 | 9 | 10 | 11 | 12 | 13 |
| 14 | 15 | 16 | 17 | 18 | 19 | 20 |
| 21 | 22 | 23 | 24 | 25 | 26 | 27 |
| 28 | 29 | 30 |
Oktober 2026
| Mo | Di | Mi | Do | Fr | Sa | So |
| 1 | 2 | 3 | 4 | |||
| 5 | 6 | 7 | 8 | 9 | 10 | 11 |
| 12 | 13 | 14 | 15 | 16 | 17 | 18 |
| 19 | 20 | 21 | 22 | 23 | 24 | 25 |
| 26 | 27 | 28 | 29 | 30 | 31 |
Saisonzeiten und Preise
| Reisezeitraum | Mindest- aufenthalt | Preise für erste Nacht | Preis ab zweiter Nacht |
|---|---|---|---|
| 23.12.2025 bis 4.1.2026 Silvestersaison | 4 Tage | € 170,80 | € 100,00 |
| 4.1. bis 28.3.2026 Vorsaison | 2 Tage | € 191,00 | € 70,00 |
| 28.3. bis 11.4.2026 Ostern | 3 Tage | € 211,00 | € 90,00 |
| 11.4. bis 16.5.2026 Nebensaison | 2 Tage | € 201,00 | € 80,00 |
| 16.5. bis 4.7.2026 Vor-Hauptsaison 3 Tage | € 227,00 | € 106,00 |
|
| 4.7. bis 5.9.2026 Hauptsaison | 6 Tage An-Abreise Sa, So | € 261,00 | € 140,00 |
| 5.9. bis 31.10.2026 Nach-Hauptsaison | 3 Tage | € 227,00 | € 106,00 |
| 31.10. bis 19.12.206 Nachsaison | 2 Tage | € 191,00 | € 70,00 |
| 19.12.2026 bis 4.1.2027 Silvestersaison 1 | 3 Tage | € 261,00 | € 140,00 |
In Juliusruh werden Kurabgaben erhoben. Die Mieter von Ferienwohnungen sind verpflichtet, die Kurabgaben an die Gemeinde abzuführen.
Kurverwaltung:
Wittower Str. 5, 18556 Juliusruh (Seebad)
Tel. (03 83 91) 3 11. Fax (03 83 91) 1 32 35
Saisonzeiten und Preise pro Tag:
Nebensaison (01.10.-30.04.)
Erwachsene: 1,50 €
Ermäßigt: 0,80 €
Hauptsaison (01.05.-30.09.)
Erwachsene: 1,80 €
Ermäßigt: 1,50 €
Aufenthaltsabgabe für Hunde
ganzjährig pro Tag: 0,80 €
Kurabgabefrei sind:
• Kinder unter 10 Jahren
• Schwerbehinderte und Schwerkriegsbeschädigte, deren Minderung der Erwerbsfähigkeit 100 v.H. beträgt, soweit sie selbst die Kosten des Aufenthaltes in voller Höhe tragen (Selbstzahler),
• Begleitpersonen von Schwerbehinderten und Schwerkriegsbeschädigten,
die lt. Amtlichem Ausweis auf völlig ständige Begleitung angewiesen sind, auf Antrag
Ermäßigung:
• Kinder in Begleitung ihrer Eltern vom Beginn des 10. bis zur Vollendung des 17. Lebensjahres.
• Schüler, Auszubildende, Studenten, Grundwehr- und Zivildienstleistende bis zum vollendeten 27. Lebensjahr, wenn die entsprechenden Nachweise vorgelegt werden,
• Schwerbehinderte mit mehr als 50 % Behinderung, sofern sie den Behindertenausweis vorlegen.
• Begleitpersonen von körperbehinderten Gästen, wenn die Notwendigkeit der Begleitung durch ärztliche Bescheinigung nachgewiesen wird.
• Rentner und im Vorruhestand befindliche Personen, die ihren Rentennachweis bzw. Vorruhestandsnachweis vorlegen..











